佐賀県唐津市元石町
唐津元石 6号地
- 南側道路
- 角地
- 土地50坪以上
- 鉄骨系
- 平屋
- 3LDK
- 3台以上駐車可能
- 太陽光発電
- 蓄電池
- オール電化
- ZEH
- タイル外壁
- ファミリークローゼット
- 小屋裏・ロフト
- 宅配ボックス
物件情報
- 所在地
- 佐賀県唐津市元石町608-8
- 交通
-
JR筑肥線「和多田」駅より徒歩11分
昭和バス「町田四丁目」バス停より徒歩4分
情報登録日:2026年4月24日
次回更新予定日:2026年5月8日
次回更新予定日:2026年5月8日
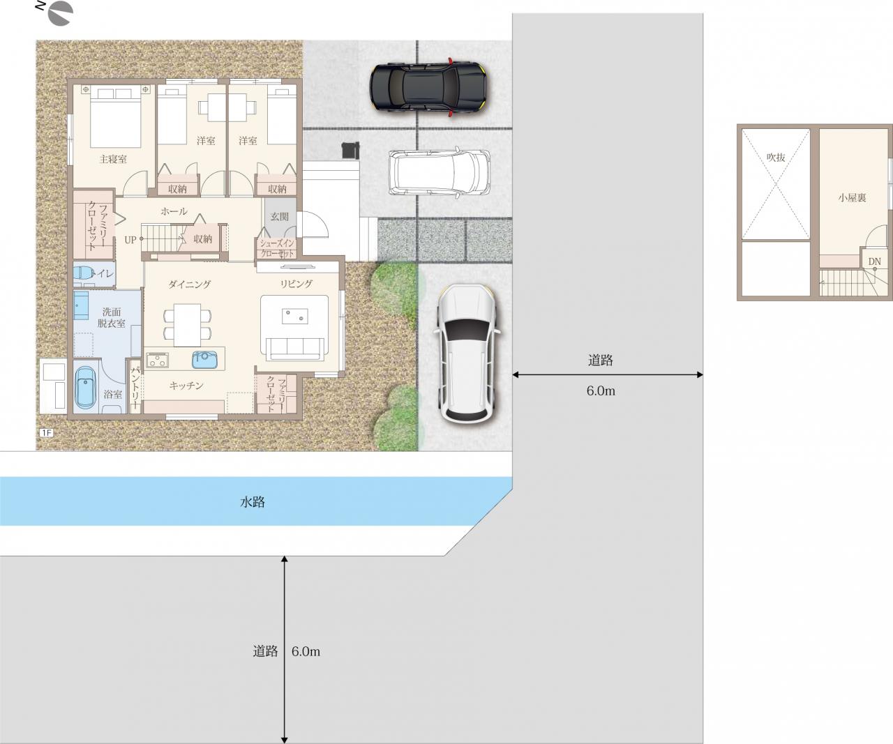
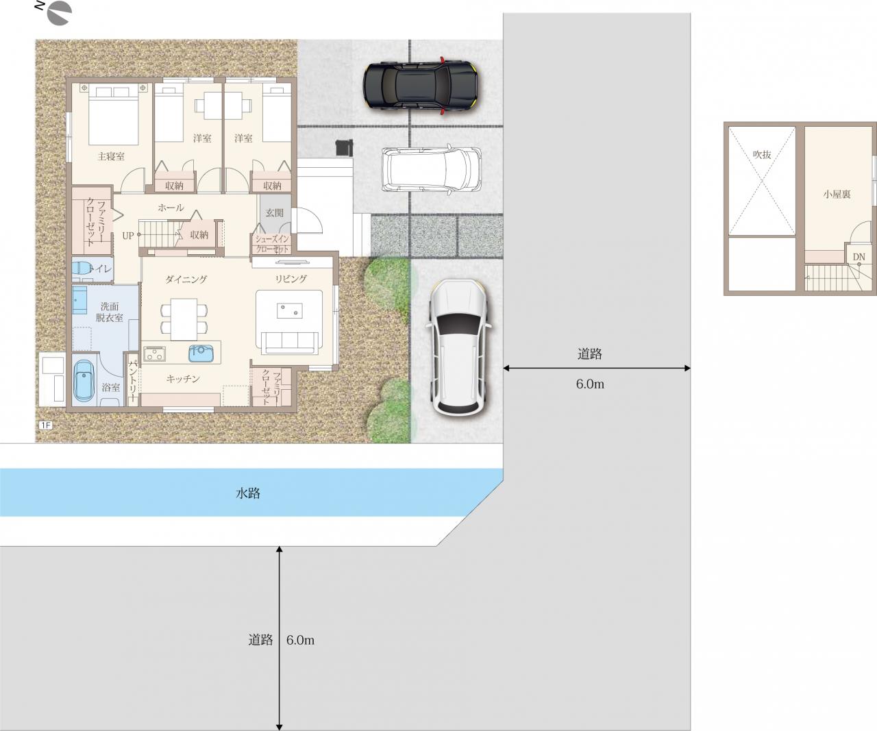
間取図

3LDK
- ファミリークローゼット
- 小屋裏
販売価格(土地+建物)
57500000 円
(税込)
土地面積:
201.52㎡
延床面積:
96.53㎡
[1F面積 83.19㎡ (25.16坪) / 小屋裏面積 13.34㎡ (4.03坪)]
おすすめポイント
ワンフロアで家族を身近に 家事動線も良好な平屋
小屋裏収納付きで収納スペースをしっかり確保
キッチン横には食料品の保管に便利なパントリー
行き止まりのない回遊性を重視した動線
南向きの大開口を設け、明るく開放感のあるLDKに
ホテルライクな広々した洗面脱衣室
廊下にある家族みんなで使えるファミリークローゼット
傾斜天井と間接照明がリラックス空間を演出する主寝室
ゲストを迎える玄関は飾り棚と間接照明がアクセント
不在時の荷物の受け取りにも安心な宅配ボックス
設備
- 鉄骨系住宅
- 蓄電池
13.2kWh - タイル外壁
- 太陽光発電システム
6.44kW - HEMS
- オール電化
- バリアフリー
- ZEH
- 対面キッチン
- フルフラットキッチン
- 食洗機
- パントリー
- ファミリークローゼット
- 宅配ボックス
- リモコンキー
- 小屋裏
- 家まるごと仕様
- 浴室乾燥機
- 脱衣収納
- 傾斜天井
- 3台駐車場
- 陽当り良好
周辺環境
現地案内図・区画図
- 案内図
- 区画図
- GoogleMap


カーナビ検索 :
佐賀県唐津市元石町604−6付近
戸建概要
- 所在地
- 佐賀県唐津市元石町608-8
- 間取り
- 3LDK
- 土地面積
- 201.52㎡
- 建物面積
- 96.53㎡
- 販売価格(税込)
- 57500000 円
- 完成年月
- 2026年1月
- 入居年月
- 即入居可
- 建物構造
- 鉄骨造 / 平屋
- 販売戸数
- 1棟
- 建築確認番号
- 第25WHEC確建福01759号(2025年10月14日)
- 広告主・土地売主・建物売主
- セキスイハイム九州株式会社:福岡県福岡市中央区高砂2丁目8-1(TEL:092-533-8071)宅地建物取引業者免許/国土交通大臣(5)第7094号
-
プラン中の外構及び植栽、屋外の給排水工事費、特殊基礎、水道加入金及び下水道受益者負担金、屋外の電気工事費は価格に含まれております。
ローン手数料・登記料及びその他の諸費用は別途となります。
プラン掲載の車両及び応接セット、ダイニングセット、ベッド、座卓などの家具調度類はイメージです。記載の価格には含まれておりません。
建物価格には消費税10%を含んでおります。
分譲地概要
- 交通
-
JR筑肥線「和多田」駅より徒歩11分
昭和バス「町田四丁目」バス停より徒歩4分
- 総区画数
- 用途地域
- 第1種中高層住居専用地域
- 建ぺい率
- 60%
- 容積率
- 200%
- 造成工事
- 完成済
- 私道負担
- 無
-
《分譲地概要》【総区画数】26区画(内セキスイハイム持分4区画)【総面積】開発面積:8,948.27m2【開発行為】検査済証:唐土第7862号(令和6年2月15日)【都市計画】非線引き地域【高さ制限】無【壁面後退】無【地区計画】無【街区・地区等】建築基準法第22条区域【造成工事】完了済【水道加入金】無【下水道受益者負担金】無【開発負担金】無【共有地施設負担金等】無【組合費】自治会費700円/月【CATV加入条件】無【管理組合】無【ガイドライン】有【建築条件付宅地分譲地】土地売買契約後ただちに建築協議をしていただき、3か月以内にセキスイハイム九州(株)と建築請負契約を結ぶことを停止条件に販売いたします。この期間内に建築しないことが確定したときには、土地売買契約は白紙となり、受領した金銭は全額無利息で返還いたします。
- 地目
- 宅地
- 道路
- 6.0m 、アスファルト舗装
- 広告主・売主
- セキスイハイム九州株式会社:福岡県福岡市中央区高砂2丁目8-1(TEL:092-533-8071)宅地建物取引業者免許/国土交通大臣(5)第7094号
- 所属団体
-
(公社)福岡県宅地建物取引業協会会員
(一社)九州不動産公正取引協議会加盟





























