福岡県北九州市小倉南区葛原4丁目
小倉南葛原 9号地
- 土地50坪以上
- 鉄骨系
- 2階建て以上
- 3LDK
- 3台以上駐車可能
- 太陽光発電
- 蓄電池
- ZEH
- 空調システム
- タイル外壁
- ファミリークローゼット
- ウォークインクローゼット
- シューズインクローゼット
- テラス・バルコニー
- 宅配ボックス
物件情報
- 所在地
- 福岡県北九州市小倉南区葛原4丁目362番47
- 交通
-
JR日豊本線「安部山公園」駅より徒歩18分
西鉄バス「葛原小学校前」バス停より徒歩7分
情報登録日:2026年3月6日
次回更新予定日:2026年3月20日
次回更新予定日:2026年3月20日
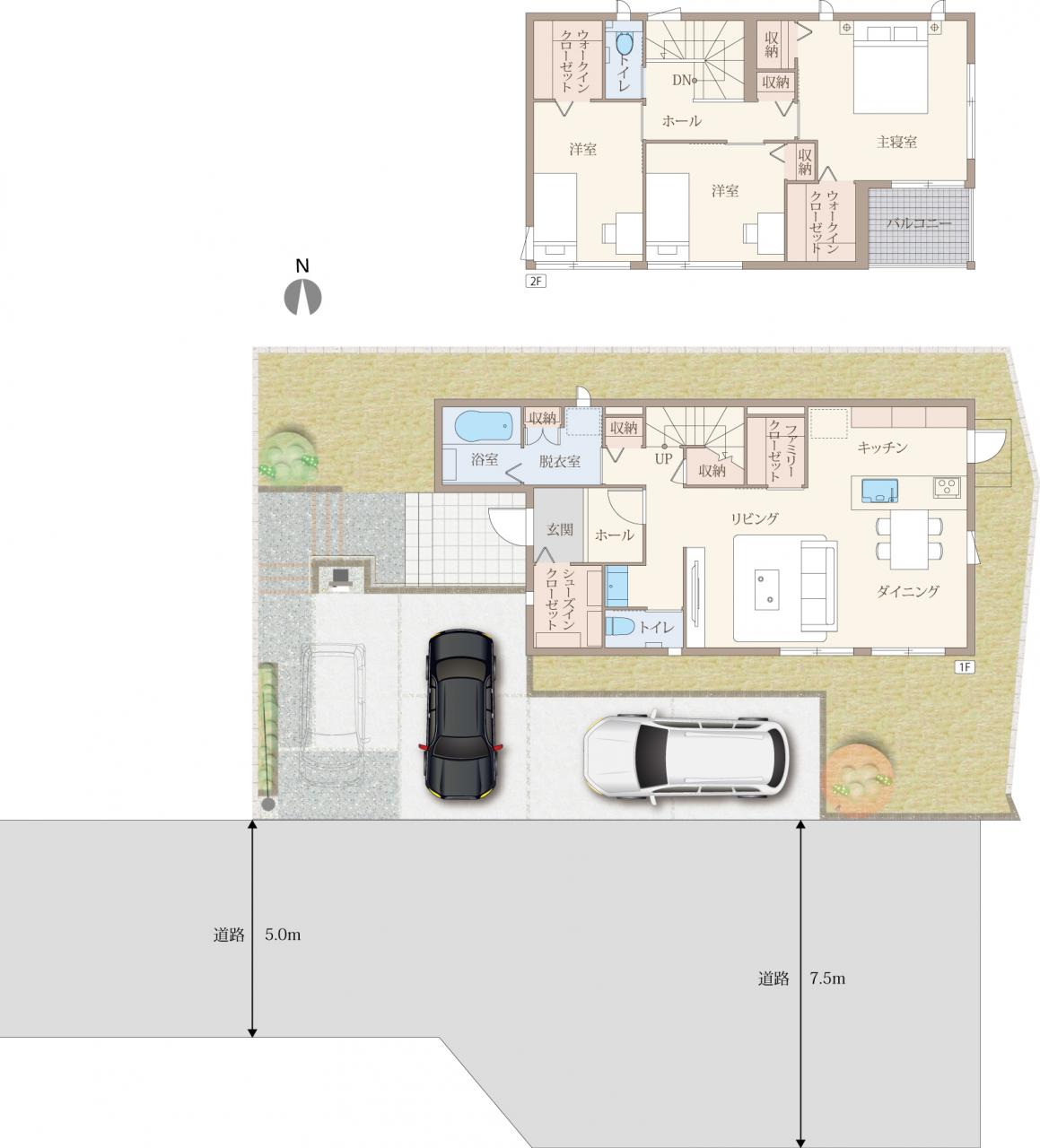
間取図

3LDK
- ウォークインクローゼット
- ファミリークローゼット
- シューズインクローゼット
販売価格(土地+建物)
58800000 円
(税込)
土地面積:
180.63㎡
延床面積:
107.57㎡
[1F面積 57.85㎡(17.49坪) / 2F面積 49.72㎡(15.04坪) ]
おすすめポイント
玄関の大型SICにはコートやバギーもサッと片付け
家事動線が短縮!1階のファミリークローゼット
南側の大きな窓から陽光差し込む明るいダイニングリビング
L字型LDKで広さ感じる空間設計
広々空間!屋根付きインナーバルコニー
駐車場3台確保 急な来客でも安心
ガス衣類乾燥機「乾太くん」で家事時間の短縮に
洗面と脱衣室をわけて配置 プライバシーを確保
不在時の荷物の受け取りも安心な宅配ボックス
主寝室にはたっぷり収納スペースがありスッキリ片付きます
設備
- 鉄骨系住宅
- 蓄電池
9.9kWh - タイル外壁
- 太陽光発電システム
5.76kW - 快適エアリー
- HEMS
- 対面キッチン
- 南面LDK
- ウォークイン
クローゼット - ファミリークローゼット
- シューズイン
クローゼット - 乾太くん
周辺環境
現地案内図・区画図
- 案内図
- 区画図
- GoogleMap


カーナビ検索 :
福岡県北九州市小倉南区葛原4丁目23付近
戸建概要
- 所在地
- 福岡県北九州市小倉南区葛原4丁目362番47
- 間取り
- 3LDK
- 土地面積
- 180.63㎡
- 建物面積
- 107.57㎡
- 販売価格(税込)
- 58800000 円
- 完成年月
- 2024年3月
- 入居年月
- 即入居可
- 建物構造
- 鉄骨造 / 2階建て
- 販売戸数
- 1棟
- 建築確認番号
- 第KJH22-04226-1号(2023年3月30日)
- 広告主・土地売主・建物売主
- セキスイハイム九州株式会社:福岡県福岡市中央区高砂2丁目8-1(TEL:092-533-8071)宅地建物取引業者免許/国土交通大臣(5)第7094号
-
プラン中の外構及び植栽、屋外の給排水工事費、特殊基礎、水道加入金及び下水道受益者負担金、屋外の電気工事費は価格に含まれております。
ローン手数料・登記料及びその他の諸費用は別途となります。
プラン掲載の車両及び応接セット、ダイニングセット、ベッド、座卓などの家具調度類はイメージです。記載の価格には含まれておりません。
建物価格には消費税10%を含んでおります。
分譲地概要
- 交通
-
JR日豊本線「安部山公園」駅より徒歩18分
西鉄バス「葛原小学校前」バス停より徒歩7分
- 総区画数
- 用途地域
- 第1種低層住居専用地域
- 建ぺい率
- 50%
- 容積率
- 80%
- 造成工事
- 完成済
- 私道負担
- 無
-
《分譲地概要》【総面積】開発面積:2,937.32m2【総区画数】11区画(内セキスイハイム持分5区画)【開発行為】検査済証:第504416号(令和4年11月10日)【都市計画】市街化区域【高さ制限】10m【壁面後退】1m【地区計画】無【街区・地区等】土砂災害警戒区域、宅地造成等工事規制区域、景観計画区域、建築基準法第22条区域【造成工事】完了済【開発負担金】無【共有地施設負担金等】ゴミ置場4.98m2、持分1/11【組合費】町内会費2,400円/年【CATV加入条件】JCOM標準プラン利用料金4,325円/月、初期費用:事務手数料3,080円、ブースター料金7,150円【管理組合】無【ガイドライン】無■プラン中の外構及び植栽、屋外の給排水工事費、特殊基礎、水道加入金及び下水道受益者負担金、屋外の電気工事費は価格に含まれております。■ローン手数料・登記料及びその他の諸費用は別途となります。■プラン掲載の車両及び応接セット、ダイニングセット、ベッド、座卓などの家具調度類はイメージです。記載の価格には含まれておりません。
- 地目
- 宅地
- 道路
- 5.0m 〜8.5m 、アスファルト舗装
- 広告主・売主
- セキスイハイム九州株式会社:福岡県福岡市中央区高砂2丁目8-1(TEL:092-533-8071)宅地建物取引業者免許/国土交通大臣(5)第7094号
- 所属団体
-
(公社)福岡県宅地建物取引業協会会員
(一社)九州不動産公正取引協議会加盟




























