福岡県柳川市三橋町蒲船津
柳川区画整理 6-7号地
- 鉄骨系
- 2階建て以上
- 4LDK
- 3台以上駐車可能
- 太陽光発電
- 蓄電池
- オール電化
- ZEH
- 空調システム
- タイル外壁
- ファミリークローゼット
- シューズインクローゼット
物件情報
- 所在地
- 福岡県柳川市三橋町蒲船津1421-7
- 交通
-
西鉄天神大牟田線「西鉄柳川」駅より徒歩11分
情報登録日:2025年11月14日
次回更新予定日:2025年11月28日
次回更新予定日:2025年11月28日
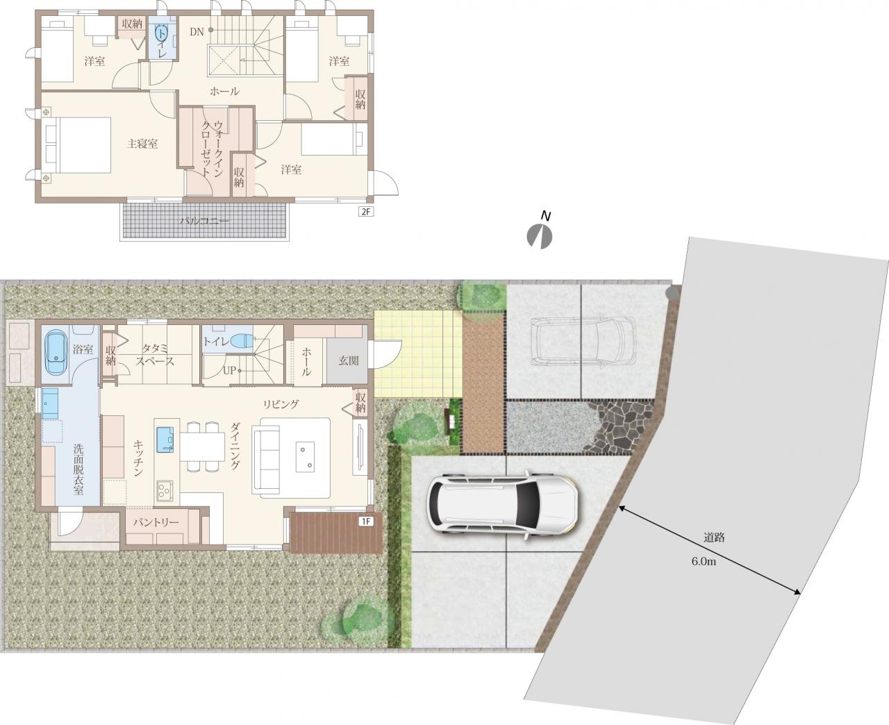
間取図

4LDK
- タタミスペース
- ウォークインクローゼット
販売価格(土地+建物)
54700000 円
(税込)
土地面積:
200.40㎡
延床面積:
112.70㎡
[1F面積 59.54㎡ (18.01坪) / 2F面積 53.16㎡ (16.08坪) ]
おすすめポイント
ユニット工法を生かした大開口で日当たり良好なLDK
ポップインアラジン付の寝室で贅沢なおうち映画時間
赤ちゃんの見守りにも安心なキッチン隣接の畳スペース
家族のコミュニケーションを育むリビングスルー階段
室内干しも外干しもしやすい広々洗面脱衣室で家事ラク
家族だんらんの時間を生み出すウッドデッキ付きのお庭
キッチン横のパントリーはまとめ買いにも安心
玄関正面には飾り棚と間接照明で素敵な空間に
ダイニング横には家族で使える広々L型カウンターを設置
洗面脱衣室には大容量の収納スペースをご用意
設備
- 鉄骨系住宅
- 蓄電池
12kWh - タイル外壁
- 太陽光発電システム
5.76kW - 快適エアリー
- HEMS
- エコキュート
- オール電化
- 対面キッチン
- 南面LDK
- 食洗機
- パントリー
- タタミスペース
- ウォークイン
クローゼット - リモコンキー
- 家まるごと仕様
- 浴室乾燥機
- 室内物干し
- 3台駐車場
- ウッドデッキ
周辺環境
現地案内図・区画図
- 案内図
- 区画図
- GoogleMap


カーナビ検索 :
福岡県柳川市三橋町蒲船津1408−6付近
戸建概要
- 所在地
- 福岡県柳川市三橋町蒲船津1421-7
- 間取り
- 4LDK
- 土地面積
- 200.40㎡
- 建物面積
- 112.70㎡
- 販売価格(税込)
- 54700000 円
- 完成年月
- 2024年1月
- 入居年月
- 即入居可
- 建物構造
- 鉄骨造 / 2階建て
- 販売戸数
- 1棟
- 建築確認番号
- 第 KJH23-01015-1 号(2023年7月6日)
- 広告主・土地売主・建物売主
- セキスイハイム九州株式会社:福岡県福岡市中央区高砂2丁目8-1(TEL:092-533-8071)宅地建物取引業者免許/国土交通大臣(5)第7094号
-
プラン中の外構及び植栽、屋外の給排水工事費、特殊基礎、水道加入金及び下水道受益者負担金、屋外の電気工事費は価格に含まれております。
ローン手数料・登記料及びその他の諸費用は別途となります。
プラン掲載の車両及び応接セット、ダイニングセット、ベッド、座卓などの家具調度類はイメージです。記載の価格には含まれておりません。
建物価格には消費税10%を含んでおります。
分譲地概要
- 交通
-
西鉄天神大牟田線「西鉄柳川」駅より徒歩11分
- 総区画数
- 用途地域
- 第1種住居地域
- 建ぺい率
- 60%
- 容積率
- 200%
- 造成工事
- 完成済
- 私道負担
- 無
-
《分譲地概要》【総面積】施行区域:28,760m2【総区画数】86区画(内セキスイハイム持分59区画)【開発行為】無【都市計画】非線引き区域【高さ制限】無 【壁面後退】無【地区計画】無【街区・地区等】柳川市三橋町蒲船津土地区画整理事業、建築基準法第22条区域、景観形成基準(田園エリア)、宅地造成等工事規制区域【造成工事】完了済【水道加入金】88,000円(口径20mm)、設計審査手数料3,000円【下水道受益者負担金】200,000円/戸【開発負担金】無【共有地施設負担金等】無【組合費】無【CATV加入条件】無【管理組合】無【ガイドライン】有【建築条件付宅地分譲地】土地売買契約後ただちに建築協議をしていただき、3か月以内にセキスイハイム九州(株)と建築請負契約を結ぶことを停止条件に販売いたします。この期間内に建築しないことが確定したときには、土地売買契約は白紙となり、受領した金銭は全額無利息で返還いたします。
- 地目
- 宅地
- 道路
- 6.0m 〜9.0m 、アスファルト舗装
- 広告主・売主
- セキスイハイム九州株式会社:福岡県福岡市中央区高砂2丁目8-1(TEL:092-533-8071)宅地建物取引業者免許/国土交通大臣(5)第7094号
- 所属団体
-
(公社)福岡県宅地建物取引業協会会員
(一社)九州不動産公正取引協議会加盟




























