福岡県飯塚市柏の森 戸建 スマートハイムプレイス新飯塚駅南II 5号地

  • 角地
  • 土地50坪以上
  • 鉄骨系
  • 2階建て以上
  • 3LDK
  • 3台以上駐車可能
  • 太陽光発電
  • 蓄電池
  • オール電化
  • 空調システム
  • 書斎・ワーキングスペース
  • ウォークインクローゼット
  • シューズインクローゼット
  • テラス・バルコニー
  • 宅配ボックス
2026年3月撮影
2026年3月撮影
2026年3月撮影
2026年3月撮影
2026年3月撮影
2026年3月撮影
2026年3月撮影
2026年3月撮影
2026年3月撮影
2026年3月撮影
2026年3月撮影
2026年3月撮影
2026年3月撮影
2026年3月撮影
2026年3月撮影
2026年3月撮影
2026年3月撮影
2026年3月撮影
2026年3月撮影
2026年3月撮影

物件情報

所在地
福岡県飯塚市柏の森509-13
交通
JR筑豊本線「新飯塚」駅より徒歩11分
西鉄バス「上の谷」バス停より徒歩3分
情報登録日:2026年4月10日
次回更新予定日:2026年4月24日

お問い合わせ北九州支店

※通常の営業時間は10:00〜18:00、定休日は火曜日、水曜日です。
※年末年始・夏季休暇を頂いている場合があります。

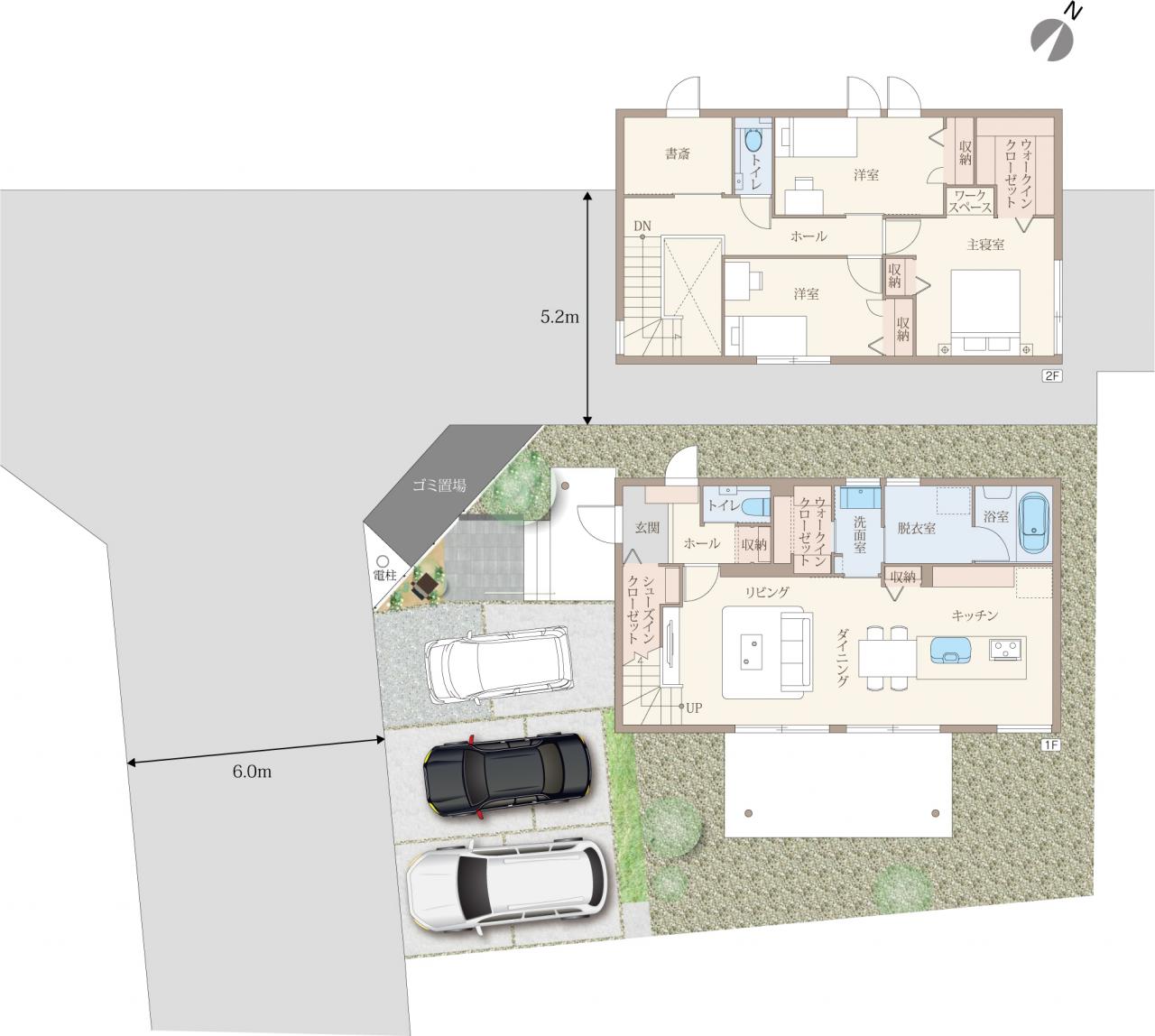
間取図

間取り図 JPGファイル
3LDK
  • ウォークインクローゼット
  • シューズインクローゼット
  • 書斎
販売価格(土地+建物) 56900000 円 (税込)
土地面積: 183.31㎡
延床面積: 104.65㎡ [1F面積 53.97㎡ (16.32坪) / 2F面積 50.68㎡ (15.33坪) ]

おすすめポイント

シューズインクローゼット併設のすっきり片付く玄関
アイランドキッチンと横並びダイニングで家事楽動線
日当たり良好な南向き大開口のLDK
リビングに吹き抜けがある開放的で明るい間取り
LDKと一体で使える広々したタイルテラス
家族の会話が自然と生まれるリビング内階段
洗面室はウォークインクローゼット併設で使いやすい空間
広々した脱衣室はハンギングバー付きで室内干し可能
アクセントクロスが映える主寝室は大容量のWIC付き
リモートワークにも役立つ書斎スペースを完備

設備

  • 鉄骨系住宅
  • 蓄電池
    4.9kWh
  • ジオマイト外壁
  • 太陽光発電システム
    6.36kW
  • 快適エアリー
  • HEMS
  • オール電化
  • 対面キッチン
  • 南面LDK
  • フルフラットキッチン
  • アイランドキッチン
  • 食洗機
  • ウォークイン
    クローゼット
  • シューズイン
    クローゼット
  • 宅配ボックス
  • エアコン
  • 陽当り良好
  • 書斎
  • 家まるごと仕様
  • 脱衣室と洗面室が別
  • 室内物干し
  • 3台駐車場
  • タイルテラス
  • 吹き抜け

周辺環境

飯塚市立立岩小学校(約1730m/徒歩22分)(撮影年月:2025年2月)
飯塚市立飯塚第二中学校(約480m/徒歩6分)(撮影年月:2025年2月)
さんない幼稚園(約280m/徒歩4分)(撮影年月:2025年2月)
JR筑豊本線「新飯塚」駅(約830m/徒歩11分)(撮影年月:2025年2月)
スパイシーモール新飯塚(約630m/徒歩8分)(撮影年月:2025年2月)
ハローデイ柏の森店(約830m/徒歩11分)(撮影年月:2025年2月)
ドラッグストアコスモス柏の森店(約310m/徒歩4分)(撮影年月:2025年2月)
越智医院(約140m/徒歩2分)(撮影年月:2025年2月)
飯塚市役所(約1330m/徒歩17分)(撮影年月:2025年2月)

現地案内図・区画図

カーナビ検索 : 福岡県飯塚市柏の森509番2付近
戸建概要
所在地
福岡県飯塚市柏の森509-13
間取り
3LDK
土地面積
183.31
建物面積
104.65
販売価格(税込)
56900000 円
完成年月
2026年2月
入居年月
即入居可
建物構造
鉄骨造 / 2階建て
販売戸数
1棟
建築確認番号
第KJH25-01106-1号(2025年8月4日)
広告主・土地売主・建物売主
セキスイハイム九州株式会社:福岡県福岡市中央区高砂2丁目8-1(TEL:092-533-8071)宅地建物取引業者免許/国土交通大臣(5)第7094号
プラン中の外構及び植栽、屋外の給排水工事費、特殊基礎、水道加入金及び下水道受益者負担金、屋外の電気工事費は価格に含まれております。
ローン手数料・登記料及びその他の諸費用は別途となります。
プラン掲載の車両及び応接セット、ダイニングセット、ベッド、座卓などの家具調度類はイメージです。記載の価格には含まれておりません。
建物価格には消費税10%を含んでおります。
分譲地概要
交通
JR筑豊本線「新飯塚」駅より徒歩11分
西鉄バス「上の谷」バス停より徒歩3分
総区画数
5区画
用途地域
第1種住居地域
建ぺい率
60%
容積率
200%
造成工事
完成済
私道負担
《分譲地概要》【総面積】開発面積:1,150.81m2【開発行為】工事完了検査合格通知書:7飯都都第83-3号(令和7年6月30日)【都市計画】非線引き区域【高さ制限】無【壁面後退】無【地区計画】無【街区・地区等】建築基準法第22条区域、宅地造成等工事規制区域【造成工事】完了済【水道加入金】55,000円(口径13mm)別途検査手数料有【下水道受益者負担金】無【開発負担金】無【共有地施設負担金等】無【組合費】自治会費500円/月、防犯対策費100円/月、組費300円/月【CATV加入条件】無【管理組合】無【ガイドライン】有【その他】最低敷地面積165m2【建築条件付宅地分譲地】土地売買契約後ただちに建築協議をしていただき、3か月以内にセキスイハイム九州(株)と建築請負契約を結ぶことを停止条件に販売いたします。この期間内に建築しないことが確定したときには、土地売買契約は白紙となり、受領した金銭は全額無利息で返還いたします。
地目
宅地
道路
4.0m 〜6.0m 、アスファルト舗装
広告主・売主
セキスイハイム九州株式会社:福岡県福岡市中央区高砂2丁目8-1(TEL:092-533-8071)宅地建物取引業者免許/国土交通大臣(5)第7094号
所属団体
(公社)福岡県宅地建物取引業協会会員
(一社)九州不動産公正取引協議会加盟