長崎県大村市久原2丁目
スマートハイムプレイス大村久原 3号地
- 土地50坪以上
- 鉄骨系
- 2階建て以上
- 4LDK
- 3台以上駐車可能
- 太陽光発電
- 蓄電池
- ZEH
- 空調システム
- タイル外壁
- ウォークインクローゼット
- テラス・バルコニー
物件情報
- 所在地
- 長崎県大村市久原2丁目1345-16
- 交通
-
JR大村線「岩松」駅より徒歩12分
長崎県営バス「与崎」バス停より徒歩5分
情報登録日:2026年2月13日
次回更新予定日:2026年2月27日
次回更新予定日:2026年2月27日
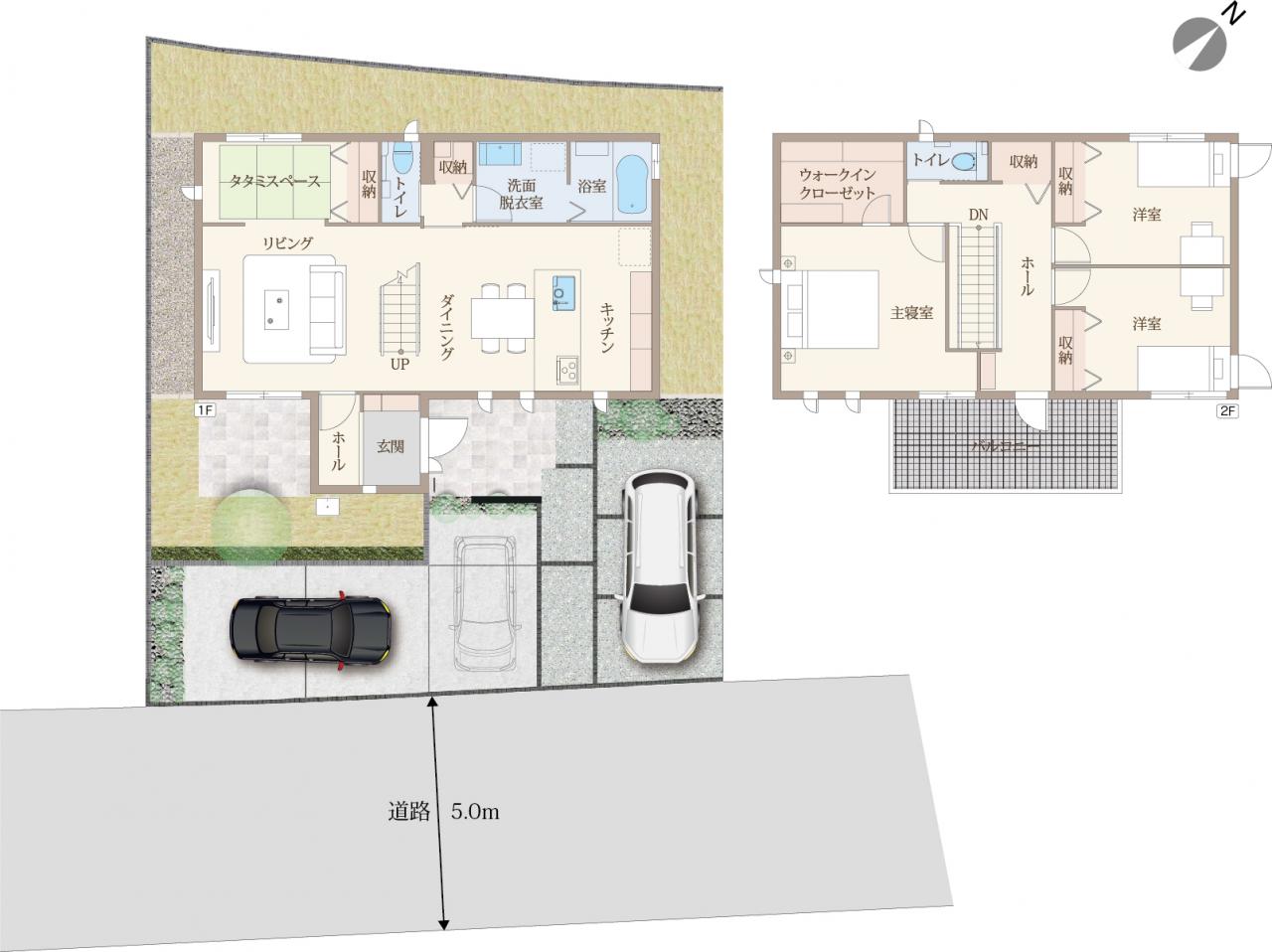
間取図

4LDK
- ウォークインクローゼット
販売価格(土地+建物)
44800000 円
(税込)
土地面積:
166.93㎡
延床面積:
111.97㎡
[1F面積 58.76㎡(17.77坪) / 2F面積 53.21㎡(16.09坪) ]
おすすめポイント
家族との会話が自然と増えるリビング内階段
家計を助ける「太陽光発電システム」のある暮らし
キッズスペースや客間としても使えるタタミスペース
スマートハイムナビの「見える化」でかしこく省エネ
お子様を見守りながら料理できる対面キッチン
主寝室横の集中収納は2.9畳の広々空間
磁器タイル外壁でメンテナンス費を抑え重厚感ある外観
住まい全体を快適な空気環境に保つ「快適エアリー」
災害時もいつもと変わらない生活ができる蓄電池搭載
南向きの開口から明るい光が差し込むリビング
設備
- 鉄骨系住宅
- 蓄電池
12kWh - タイル外壁
- 太陽光発電システム
5.76kW - 快適エアリー
- HEMS
- エコキュート
- バリアフリー
- 対面キッチン
- 南面LDK
- タタミスペース(居室:間取りに含め
- 設備のみに記載)
- ウォークイン
クローゼット - バルコニー
周辺環境
現地案内図・区画図
- 案内図
- 区画図
- GoogleMap


カーナビ検索 :
長崎県大村市久原2丁目1348−3付近
戸建概要
- 所在地
- 長崎県大村市久原2丁目1345-16
- 間取り
- 4LDK
- 土地面積
- 166.93㎡
- 建物面積
- 111.97㎡
- 販売価格(税込)
- 44800000 円
- 完成年月
- 2023年7月
- 入居年月
- 即入居可
- 建物構造
- 鉄骨造 / 2階建て
- 販売戸数
- 1棟
- 建築確認番号
- 第ERI-22041481号(2022年10月27日)
- 広告主・土地売主・建物売主
- セキスイハイム九州株式会社:福岡県福岡市中央区高砂2丁目8-1(TEL:092-533-8071)宅地建物取引業者免許/国土交通大臣(5)第7094号
-
プラン中の外構及び植栽、屋外の給排水工事費、特殊基礎、水道加入金及び下水道受益者負担金、屋外の電気工事費は価格に含まれております。
ローン手数料・登記料及びその他の諸費用は別途となります。
プラン掲載の車両及び応接セット、ダイニングセット、ベッド、座卓などの家具調度類はイメージです。記載の価格には含まれておりません。
建物価格には消費税10%を含んでおります。
分譲地概要
- 交通
-
JR大村線「岩松」駅より徒歩12分
長崎県営バス「与崎」バス停より徒歩5分
- 総区画数
- 用途地域
- 第1種中高層住居専用地域
- 建ぺい率
- 60%
- 容積率
- 200%
- 造成工事
- 完成済
- 私道負担
- 無
-
《分譲地概要》【総面積】667.31m2【開発行為】無【都市計画】非線引き区域【高さ制限】無【壁面後退】無【地区計画】無【街区・地区等】建築基準法第22条区域、宅地造成等工事規制区域【造成工事】完了済【開発負担金】無【共有地施設負担金等】無【組合費】自治会費:400円/月【CATV加入条件】無【管理組合】無【ガイドライン】有【完成年月】2023年7月(3号地)2024年2月(4号地)■プラン中の外構及び植栽、屋外の給排水工事費、特殊基礎、水道加入金及び下水道受益者負担金、屋外の電気工事費は価格に含まれております。■ローン手数料・登記料及びその他の諸費用は別途となります。■プラン掲載の車両及び応接セット、ダイニングセット、ベッド、座卓などの家具調度類はイメージです。記載の価格には含まれておりません。
- 地目
- 宅地
- 道路
- 5.0m 、アスファルト舗装
- 広告主・売主
- セキスイハイム九州株式会社:福岡県福岡市中央区高砂2丁目8-1(TEL:092-533-8071)宅地建物取引業者免許/国土交通大臣(5)第7094号
- 所属団体
-
(公社)福岡県宅地建物取引業協会会員
(一社)九州不動産公正取引協議会加盟




























